澳门游戏娱乐场棋牌
风风棋牌跑胡子最新版本
- ECSG电蒸汽发生器 E6-72M系列安装操作说明
- 棋牌平台EVC Turflow 换热器使用说明书
- 棋牌平台BT6-B 洁净型压力平衡式最全棋牌平台特点介绍
- 棋牌平台BCV1和BCV20 排污控制阀使用说明书
- 棋牌平台BC3250排污控制器安装使用说明书
联系我们
联系人:刘经理
手机:13295105805
电话:
邮箱:540329100@qq.com
地址:13295105805
棋牌平台DA系列可调喷嘴型减温器
所属栏目:棋牌平台气动电动控制阀门
发布时间:2024-08-12
关注度:239次
简单介绍:棋牌平台DA系列可调喷嘴型减温器概述:Spirax Sarco直接接触式减温器降低过热蒸汽的温度,使蒸汽温度接近饱和温度。喷淋水被直接注喷入蒸汽,通过吸收蒸汽的热量而闪蒸成蒸汽。DA系列减温器旨在通过直接向过热蒸汽流注入冷却水,精确而经济地控制下游蒸汽温度。它由一个单独的执行器和一个集成在一个单元中的喷雾控制阀组成
棋牌平台DA系列可调喷嘴型减温器概述:
Spirax Sarco直接接触式减温器降低过热蒸汽的温度,使蒸汽温度接近饱和温度。喷淋水被直接注喷入蒸汽,通过吸收蒸汽的热量而闪蒸成蒸汽。DA系列减温器旨在通过直接向过热蒸汽流注入冷却水,精确而经济地控制下游蒸汽温度。它由一个单独的执行器和一个集成在一个单元中的喷雾控制阀组成。
典型应用:
- 超出固定面积减温器使用范围的高调节比应用。
- 用于安全地降低蒸汽温度,以便使用较低温度蒸汽的下游工艺设备正在运行,保持恒定的温度以实现精确的工艺温度控制。
- 用于降低发电厂涡轮旁通系统的蒸汽排放温度,用于热交换、转储站等。
- 改进间接接触式换热器(管壳式换热器、板式换热器、反应器加热套等)的传热性能。
特点:
- 易于安装
- 大的流量系数范围
- 快速蒸发,最大限度地减少过喷
- 低维护 - 极小的蒸汽压降
- 灵活的设计选项
- 设计可靠
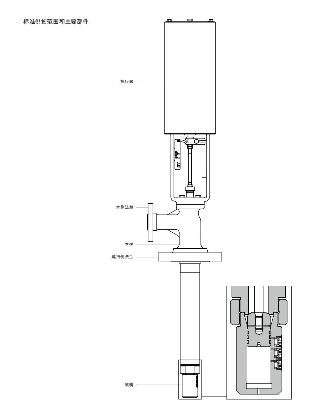
DA系列可调喷嘴型减温器结构图:

DA系列可调喷嘴型减温器技术规格:

DA系列可调喷嘴型减温器技术参数:

DA系列可调喷嘴型减温器口径尺寸:


